Katowice Ogłoszenia Nieruchomości Domy Domy sprzedaż Piękny dom na Giszowcu 149 m² - stan deweloperski

Piękny dom na Giszowcu 149 m² - stan deweloperski

1 490 000,00 zł (9 976,57 zł/m2)
Katowice

+48[pokaż numer]

Zamieszkaj w pięknym domu z historią na Giszowcu. Dom w stanie deweloperskim, po generalnym remoncie. 

Dom po kompleksowym, generalnym remoncie z użyciem najlepszej jakości materiałów - wprowadzasz się do praktycznie nowego domu, który został wyremontowany od piwnic aż po dach.

Dom o powierzchni użytkowej 149 m² posadowiony na ogrodzonej działce o powierzchni 254 m².

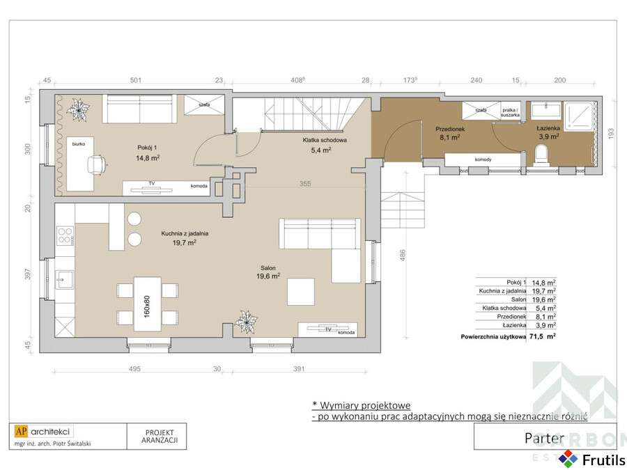
Parter:


  • salon,

  • kuchnia z jadalnią,

  • pokój,

  • łazienka,

  • przedsionek.


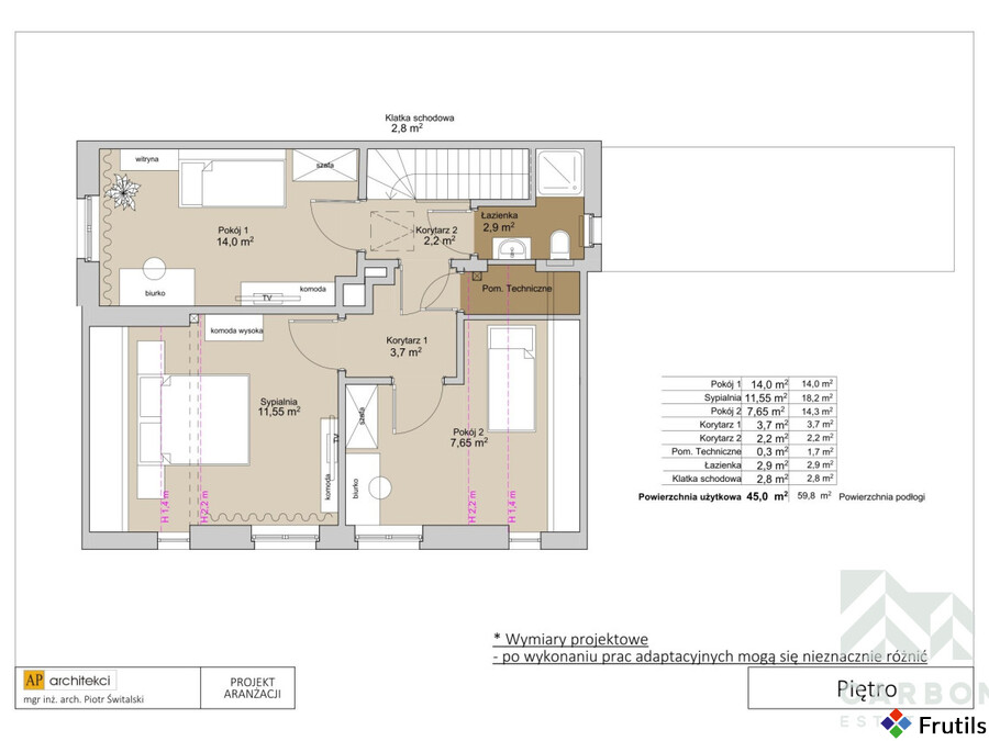
Piętro:


  • trzy sypialnie,

  • łazienka,

  • pomieszczenie techniczne.


Piwnica: pogłębiona, prawie 2m wysokości, 27,5 m² przestrzeni

Poddasze:
wykończone - 33 m² (po podłodze) 

Planowana budowa wiaty na dwa samochody, w charakterze budynku (dodatkowe 80.000 zł).


Specyfikacja

Liczba pokoi
6 i więcej
Metraż
149,35 m2
Powierzchnia działki
254 m2
Rok budowy
1920

Wyślij wiadomość

FrutilsId: ab3d920e-614d-4a5e-8b9d-a2507334574a Aktualizacja: 2026-02-17 07:45