Katowice Ogłoszenia Nieruchomości Mieszkania Sprzedaż mieszkania Mieszkanie z potencjałem - Nikiszowiec - 86,45 m2

Mieszkanie z potencjałem - Nikiszowiec - 86,45 m2

439 000,00 zł (5 078,08 zł/m2)
Katowice

+48[pokaż numer]

CARBON ESTATE sp. z o.o.

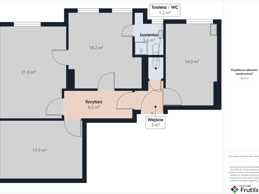
Na sprzedaż przestronne mieszkanie o powierzchni 86,45 m², zlokalizowane w jednej z najbardziej klimatycznych i zabytkowych dzielnic Katowic - Nikiszowcu, przy ul. Czechowa.

Mieszkanie znajduje się na 2. piętrze zabytkowej kamienicy. Składa się z:

- 4 pokoi 

- łazienki z oknem,

- osobnej toalety,

- przestronnego przedpokoju

- dodatkowo piwnica 

Stan techniczny: do generalnego remontu, co daje nowemu właścicielowi możliwość dowolnej aranżacji i wykorzystania pełnego potencjału nieruchomości.

Nieruchomość posiada 2 księgi wieczyste: 
- księga nr 1. -  mieszkanie - 66,19m2 
- księga nr 2. - lokal niemieszkalny - 16,5m2 
- części wspólne wykupione od wspólnoty - 3,75 m2  (przedpokój z toaletą) 

Posiadamy zgodę od wspólnoty na przeprowadzenie remontu oraz projekt budowlany z inwentaryzacją oraz propozycją zmian układu funkcjonalnego. 

Klatka schodowa jest świeżo po remoncie, co dodatkowo podniesie standard budynku. Remont obejmuje: ściany, schody + instalacje gaz i elektryczne).  

Czynsz do wspólnoty - 750 zł 
- zimna woda i ścieki 
- opłaty administracyjne 
- odpady komunalne 

Dodatkowo według zużycia : gaz i prąd. 

Idealna inwestycja:

Nikiszowiec to dzielnica o wyjątkowym klimacie, ceniona przez turystów, artystów oraz inwestorów. Nieruchomości w tej lokalizacji cieszą się dużym zainteresowaniem najemców - zarówno krótkoterminowych, jak i długoterminowych. Świetna propozycja dla inwestorów szukających nieruchomości z potencjałem.

Specyfikacja

Piętro
2
Liczba pokoi
4
Metraż
86,45 m2
Rodzaj zabudowy
Blok
Rynek
wtórny

Wyślij wiadomość

FrutilsId: 21a94dd4-53b3-4dd4-8b29-445829fd9ab0 Aktualizacja: 2026-04-20 10:15