Częstochowa Ogłoszenia Nieruchomości Lokale Wynajem lokalu Lokal handlowo-usługowy na wynajem

Lokal handlowo-usługowy na wynajem

6 500,00 zł (25,12 zł/m2)
Częstochowa

517[pokaż numer]

Biuro Nieruchomości Sverum

Biuro Nieruchomości Sverum ma w swojej ofercie do wynajęcia lokal. Lokal użytkowy o powierzchni 258,80m2, usytuowany w Częstochowie, w dzielnicy Stare Miasto.

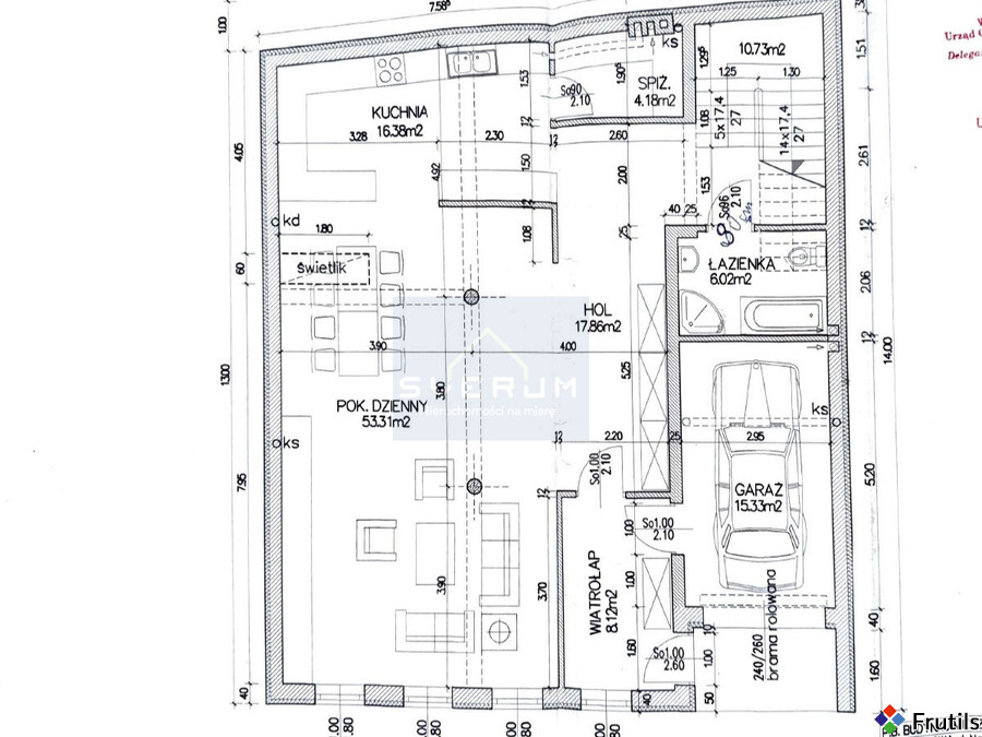
ROZKŁAD POMIESZCZEŃ PARTER:
wiatrołap, pokój dzienny, kuchnia, spiżarnia, łazienka, garaż
Standard:
Drzwi: PCV
Ściany wewnętrzne: gładzie gipsowe, tynk strukturalny
Ściany zewnętrzne: tynk, styropian 10cm
Okna: PCV
Podłogi: granit, gres
Zabezpieczenia: roleta zewnętrzna

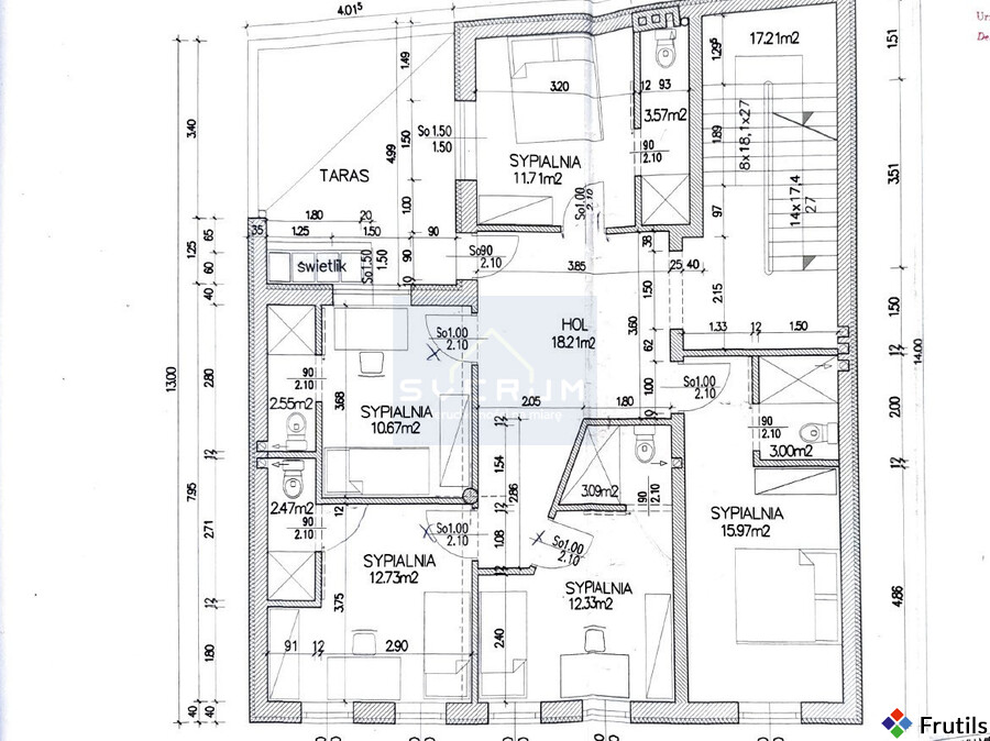
ROZKŁAD POMIESZCZEŃ PIĘTRO:
hol, 5 sypialni, 5 łazienek, taras
Standard:
Drzwi: PCV
Ściany wewnętrzne: gładzie gipsowe
Ściany zewnętrzne: tynk, styropian 10cm
Okna: PCV
Podłogi: płytki

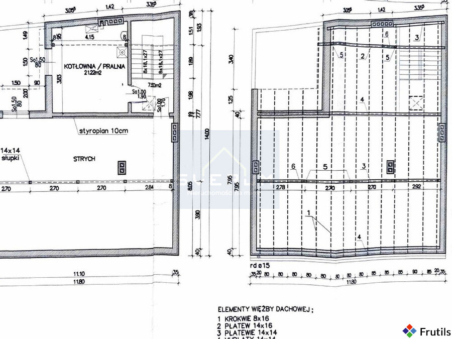
ROZKŁAD POMIESZCZEŃ PODDASZE:
strych, kotłownia z pralnią i suszarnią
Standard:
Drzwi: PCV
Ściany wewnętrzne: gładzie gipsowe
Ściany zewnętrzne: tynk, styropian 10cm
Okna: PCV
Podłogi: płytki

Miejsca parkingowe: w strefie publicznej tuż przy lokalu

LOKALIZACJA:
Dzielnica, w pobliżu Galeria Jurajska, Apteka, Bankomat, Punkty handlowe i usługowe, Przedszkole, Szkoła
Komunikacja: mpk, tramwaj, dojazd autem

Dodatkowo:

Cena najmu: 6500 zł
Opłaty za media: według wskazań licznika - prąd i woda, gaz
Ogrzewanie: gazowe
Czynsz: lokal bezczynszowy
Kaucja: 10000 zł
Dostępne: od 08 stycznia 2026r.
Możliwość najmu dodatkowych pomieszczeń o powierzchni 145,75 za kwotę 2500 zł oraz lokalu o powierzchni 235m2 w cenie 4500 zł. Lokale łączą się ze sobą.

Zapraszam na prezentację i po więcej informacji
Eliza Flis

Specyfikacja

Metraż
258,8 m2

Wyślij wiadomość

FrutilsId: b898c7d4-e817-4547-a069-f5a08f876597 Aktualizacja: 2026-04-15 08:30